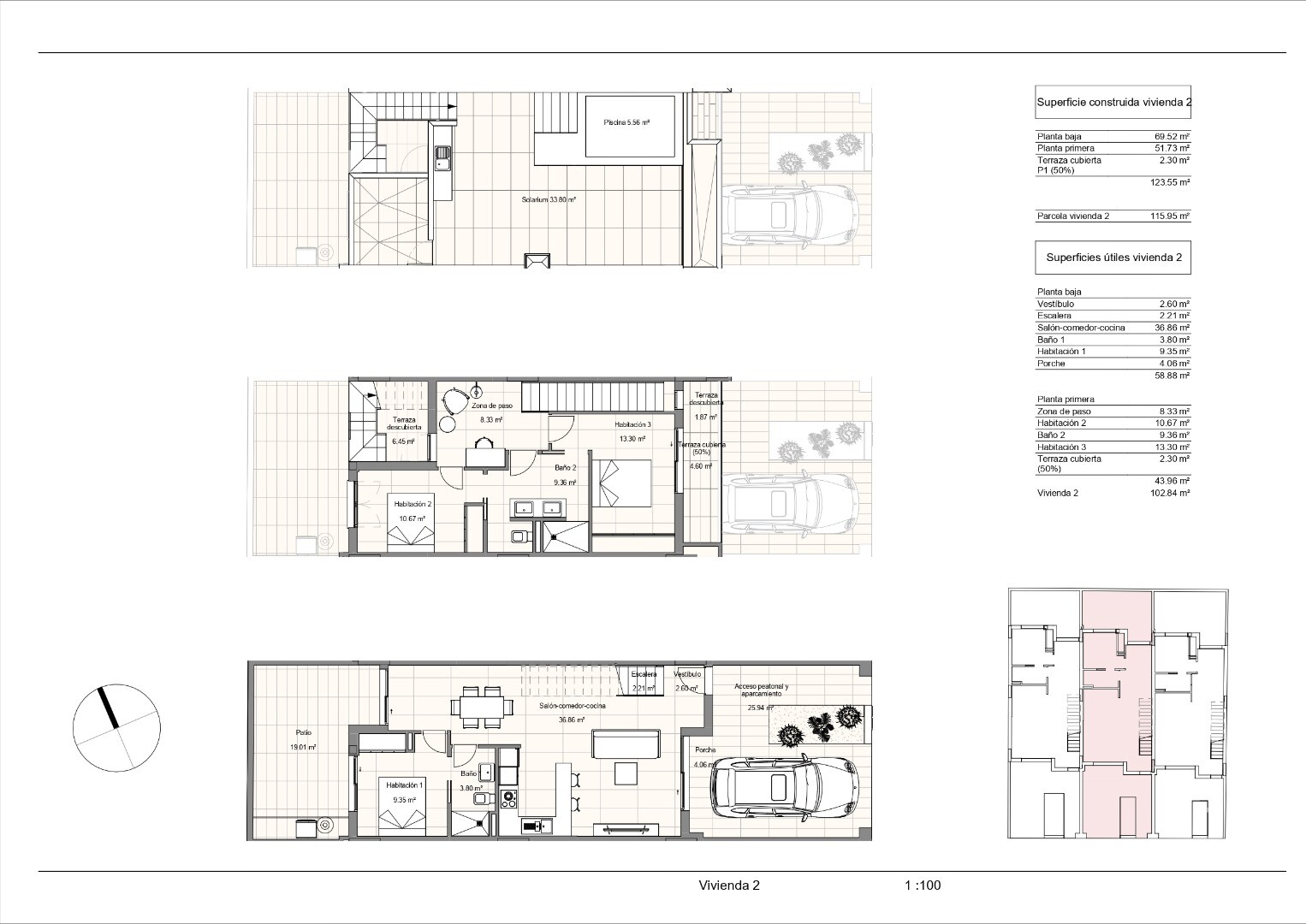
Bella Salina Collection — это особняк, выделяющийся своим внешним дизайном, сочетанием чистых линий и декорированных элементов, которые создают уникальный, современный и элегантный стиль. Расположенный на южной стороне в развитом жилом районе всего в 150 метрах от пляжа, он идеально подходит для тех, кто хочет наслаждаться жизнью на Средиземноморье.... Дома будут полностью готовы, включая: кухонную технику, полностью отделанные ванные комнаты, электрические жалюзи, внутреннее и наружное освещение, летнюю кухню и подогреваемый бассейн с соленой водой. На первом этаже создано «открытое и светлое» пространство, где гостиная, столовая и кухня соединены раздвижными дверями с внутренним двориком для отдыха на открытом воздухе и отдыха круглый год. Лестница с простой конструкцией из белого металла и стеклянной балюстрадой идеально дополняет интерьер, позволяя сохранять свет и простор уже с самого входа. Планировку этого этажа завершает комната с выходом на террасу и ванная комната Джека и Джилл. На верхнем этаже, куда можно подняться по этой лестнице, находится зона отдыха. Эта многофункциональная лестничная площадка ведет к двум просторным спальням, одна из которых имеет собственную террасу, и обе спальни имеют общую элегантную ванную комнату Джека Джилл площадью 10 м². Терраса на крыше идеально спроектирована, с нее можно наслаждаться видом на море, обедать на свежем воздухе, загорать в уединении или освежаться в подогреваемом бассейне с соленой водой. До аэропортов Мурсии и Аликанте можно добраться примерно за 40 минут из Мурсии и за 50 минут из Аликанте соответственно.