Таунхаус на продажу в Гран Алакант за 280 000 € (AL04)

Бунгало с 1, 2 или 3 спальнями, с 1 или 2 ванными комнатами. Выберите лучший макет для вашего дома и сделайте его идеальным для вашей семьи. Общий бассейн и близко ко всем услугам.

280.000 €
Ref. AL04
Gran Alacant, Alicante Карта

Основные характеристики

<sup>м2</sup> жилья
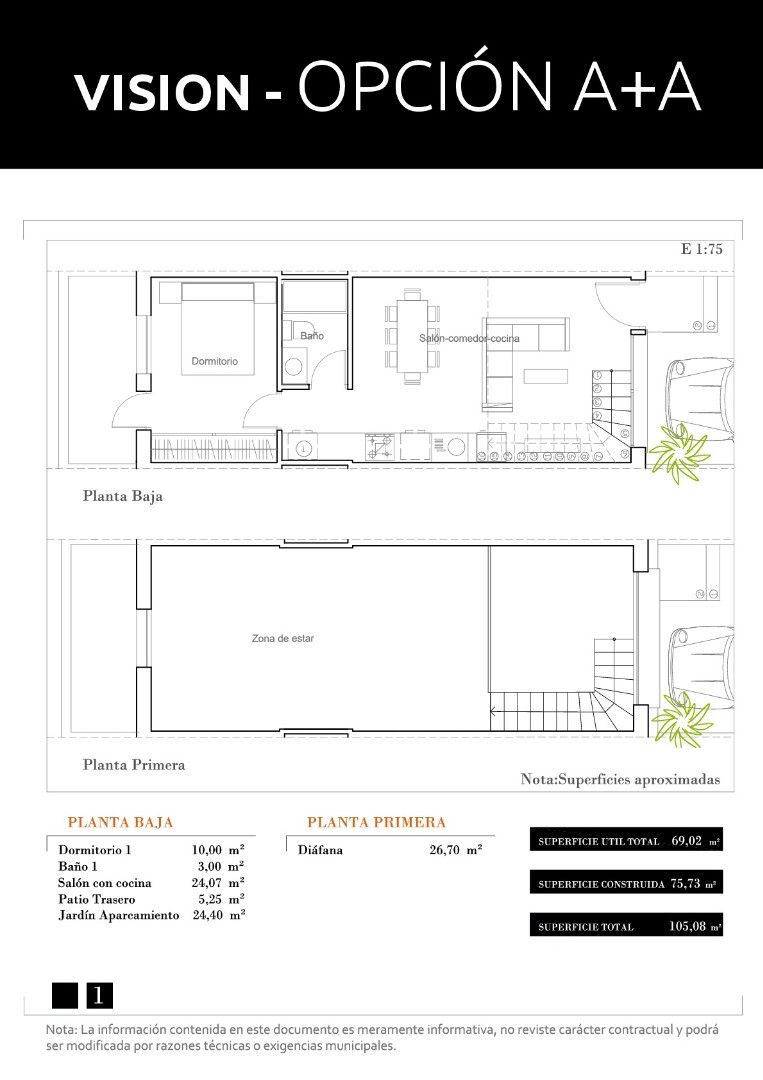
75 м2 жилья
Спальни
2 Спальни
Туалеты
1 Туалеты
Расстояние до моря
До пляжа 3 km
Общественный бассейн
Сад
Шкафы
Двойное остекление

Описание

Вам нужна дополнительная информация? Меньше информации
Мы представляем вам дом в одном из лучших районов Коста Бланки. Очень близко к Аликанте и его аэропорту, пляжу с голубым флагом, супермаркетам, барам, ресторанам и многому другому! Различные возможности внутреннего распределения дают много возможностей для удовлетворения потребностей разных и разных семей. С хорошей коммунальной зоной, с бассейном,...

Расположение

Gran Alacant, Alicante
Вас заинтересовала эта недвижимость, и вы хотели бы получить дополнительную информацию?

Моделирование ипотеки

Остаточная цена без финансирования
00,00 €
Примерные расходы:
00,00 €
Всего собственных средств
00,00 €
Взнос по ипотеке
€/mes
Вам нужна дополнительная информация?
Эту недвижимость просматривают 10 человек